Braemar Valves
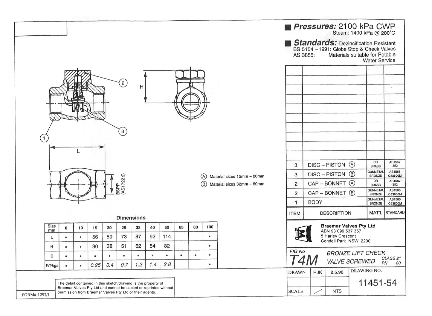
Lift Check Valve - Bronze - Screwed - T4M - 40mm
Lift Check Valve - Bronze - Screwed - T4M - 40mm
Regular price
$306.00 AUD
Regular price
Sale price
$306.00 AUD
Unit price
per
Couldn't load pickup availability
Lift Check Valve - Bronze - Screwed - T4M - 40mm
